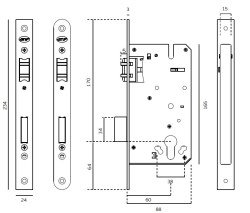
Zadlabací válečkový zámek IN.20.894.R s otvorem pro PZ klíč je vyrobený z kvalitního materiálu, nerezavějící oceli s povrchovou úpravou.
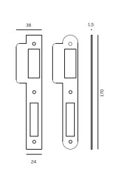
Rozměry čela zámku:
Délka zámku: 234 mm
Šířka zámku: 24 mm
Tloušťka zámku: 3 mm
Rozteč: 72 mm (vzdálenost mezi otvorem na kliku a vložkou/klíčem)
Zádlab: 88 mm
Dormas: 60 mm (vzdálenost osy kliky od lišty zámku)

Zajišťujeme zakázkovou kovovýrobu po celé České republice a Slovensku. Díky vlastní dopravě garantujeme rychlé a spolehlivé dodání ocelových zárubní, kovových konstrukcí i technického příslušenství přímo na stavbu nebo do vašeho provozu.
Hledáte zkušeného dodavatele? Kontaktujte nás, rádi vám připravíme cenovou nabídku na míru dle vašich požadavků.
+420 775 329 321
objednavky@megacorp.cz
Administrativa:
+420 775 329 322
info@megacorp.cz
MEGACORP společnost s r.o.
Kelč 455
756 43 Kelč
Česká republika
Cookies / GDPR
Copyright Markéta Kubná